|
Forside
Lone Pandell
Niklas Pandell
Vores nye hus
Sommerhus
Nordkyststien 2021
|
Vores nye hus
 | Efter at have boet i vores dejlige hus på Jydehøjvej 6 i Ørslev i godt 17 år, satte vi det til salg i april 2019.
Vi har været utrolig glade for at bo på Jydehøjen, men da børnene var flyttet hjemmefra, begyndte huset at være for stort, og specielt haven på næsten 3.000 kvm. brugte vi ikke rigtigt mere, bortset fra når vi skulle ordne den!
|
 | Vores ønske var at finde en byggegrund tæt på Slagelse, så vi kunne komme i gå- og cykelafstand til de fleste ting i Slagelse,
men samtidig havde vi ikke lyst til at flytte midt ind i byen med larm og naboer på alle sider, efter at have vænnet os til roen på Jydehøjen.
Vi fandt den perfekte beliggenhed på Valmuevænget, en ny udstykning på en sidevej til Valmuevej, lige nord for ACV (det tidligere Andersvænge). En stille og rolig vej med 21 grunde og meget tæt på den nye Nordskov, som er under etablering.
Da vi jo ikke vidste, hvor lang tid det ville tage at sælge huset på Jydehøjen, turde vi ikke at påbegynde byggeriet af det nye hus af frygt for måske at stå med 2 huse og dobbelte omkostninger i flere år, så vi nøjedes med at købe grunden, og så kunne vi begynde
på det store arbejde med at få tegnet vores hus, søge om byggetilladser osv. |
Designfasen
 | Vi har bygget hus med HusCompagniet, og har overordnet set været meget tilfredse med forløbet.
HusCompagniet er nordens største husbygger, og har mange års erfaring i at bygge tusindvis af huse. Du får ikke bare et standard typehus med HusCompagniet, men kan helt selv bestemme, hvordan dit nye hus skal se ud.
Det billigste er dog at tage udgangspunkt i én af deres skabeloner, det vil sige et færdigt hus i den rigtige størrelse, hvor form og ydervægge passer dig. Herfra kan du indrette huset efter præcis dine ønsker med hensyn
til indvendig indretning af alle værelser, antal døre og vinduer osv. osv.
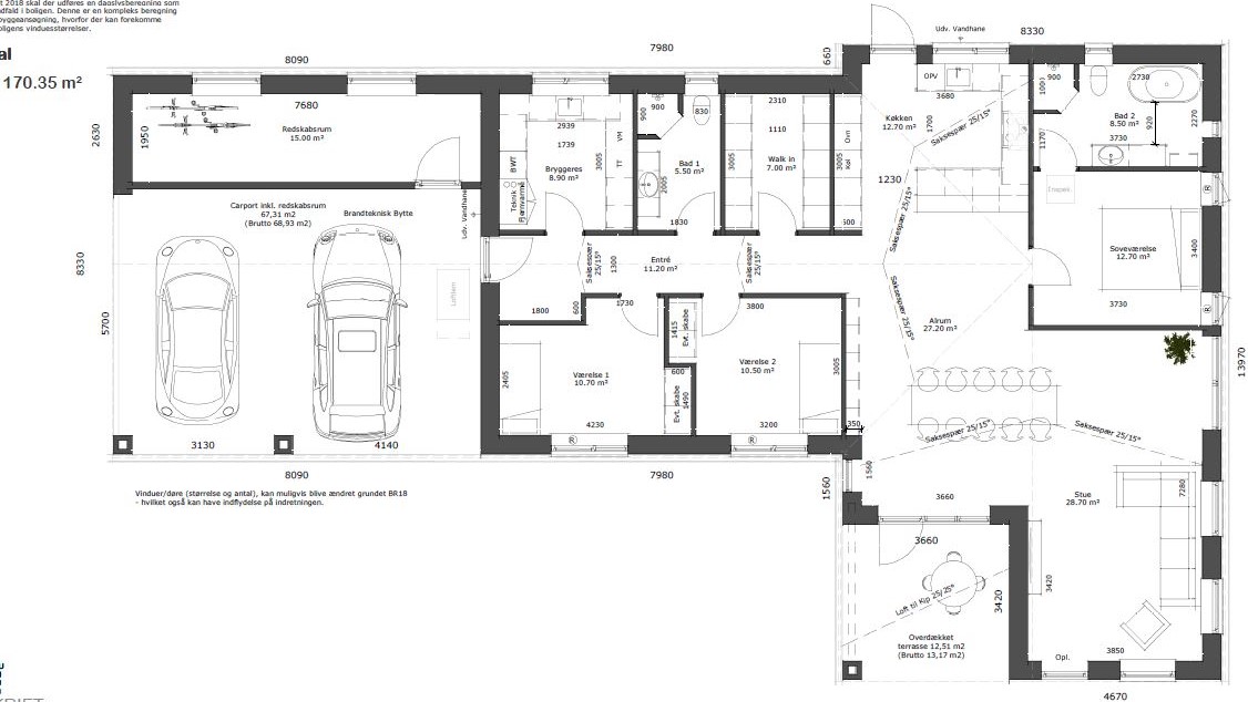
Vi fandt et vinkelhus på 170 kvm., som vi syntes rigtig godt om, og så var det ellers bare at gå i gang med indretningen.
|
 | Efter flere måneder og mange revisioner frem og tilbage med tegnestuen, fik vi til sidst designet vores drømmehus.
Vi havde fra starten af sagt, at vi ville have et stort og åbent køkkenalrum og stue, så det prioriterede vi meget plads på. Ialt brugte vi 69 kvm. på det, og det hele blev tegnet med loft til kip og akustiklofter.
I hele gangen lavede vi også loft til kip, så det ikke skulle komme til at virke som en lang og mørk fordelilngsgang fra et 70'er hus, men mere som en hall, der åbner sig op helt fra indgangsdøren og ind til køkkenalrummet.
Vi lavede også en meget bred dobbelt carport på 8 meter i bredden, så der er god plads til 2 biler og en motorcykel og samtidig kan man gå tørskoet fra bilerne til entrédøren.
|
Byggeprocessen
 | 23. marts 2020
Vi fik solgt vores hus på Jydehøjen på godt 10 måneder, så det gik hurtigere, end vi havde turdet håbe på. Den 9. marts udløb fortrydelsesfristen for køberne, og så kunne vi endelig sætte gang i husbyggeriet.
Mandag den 23. marts havde vi opstartsmøde med vores byggeleder Karsten Nielsen på grunden. Til opstartsmødet har en landmåler sat huset af på grunden, og det er sidste chance for at "råbe stop", hvis noget ser forkert ud med hensyn til placeringen.
Karsten Nielsen fulgte os gennem hele byggeprocessen med yderst professionel hånd, og var god til at informere os, og følge op på alting og koordinere med de mange forskellige håndværkere hele vejen.
|
 | 24. marts 2020
Allerede dagen efter opstartsmødet begyndte de at grave ud til fundamentet.
Da vores grund ligger højt i forhold til næste udstykning mod Nord, skulle der graves en masse (14 lastbiler!) jord væk og fyldes op med grus til en såkaldt sandpude, som huset skulle funderes på.
|
 | 30. marts 2020
Så er sandpuden færdig, og de er klar til at sætte fundamentet til huset.
|
 | 7. april 2020
Nu er første del af soklen lavet rundt om huset. Det er virkelig spændende, og nu kan man virkelig få en fornemmelse for, hvor huset kommer til at ligge, og hvordan det kommer til at se ud.
|
 | 14. april 2020
Soklen er færdig, og de er klar til at lægge isolering i gulvet.
|
 | 18. april 2020
Den 17. april var de færdige med isolering af gulv og i løbet af blot en enkelt dag, fik de den 18. april lagt slanger ud til gulvvarme i alle rum.
De orange streger markerer indervæggene, så nu kan man tydeligt se, hvor alle rum kommer til at ligge. Der stikker slanger op til vandtilførsel til alle toiletter, vaske, køkken, bryggers osv.
|
 | 20. april 2020
Ovenpå gulvvarmeslangerne er der lagt armeringsjern, og så er de klar til at støbe gulve.
|
 | 21. april 2020
Der bliver ikke spildt nogen tid, så allerede dagen efter kom de store betonkanoner med beton i lange baner, og på under en dag var der støbt gulve.
|
 | 24. april 2020
Blot 3 dage efter at gulvet blev støbt, begyndte de at sætte væggene op.
Det var endnu en spændende milepæl, nu begynder det at ligne et rigtigt hus, og man får en bedre fornemmelse for størrelse og højde.
|
 | 28. april 2020
Efter 4 dage er alle vægge sat op.
|
 | Det var virkelig spændende at gå rundt i alle rummene og for første gang
finde ud af, om alle de små streger, som vi havde sat på et stykke papir året før, var blevet til nøjagtigt de rum, som vi håbede på.
Vi var meget tilfredse med resultatet, og alle værelser, vinduer og døre så ud til at være placeret optimalt.
|
 | 5. maj 2020
Tirsdag den 5. maj var det blevet tømrernes tur til at overtage byggepladsen, og så begyndte de at sætte spær op.
Endnu engang blev det spændende, nu kan man også fornemme den endelige højde på huset, og huset ser "mere rigtigt" ud.
|
 | 7. maj 2020
Den 7. maj var det blevet tid til rejsegilde.
Vores søde løbeveninde Bente Christensen havde bundet en flot krans til os.
|
 | Vi ville selvfølgelig gerne have holdt et stort rejsegilde med
øl, pølser og kartoffelsalat for alle håndværkerne og vores familie og venner.
På grund af Covid-19 udbruddet og forsamlingsforbud, blev det et noget mere sparsomt traktement, først med håndværkerne og byggelederen, og da de var kørt, kom den allernærmeste familie og nogle få venner.
Dengang tænkte vi, at det vel nok var ærgerligt, at vi lige skulle have rejsegilde i de få uger, hvor der var lavet nogle mærkelige restriktioner om forsamlingsforbud, men lige på det punkt, blev vi vidst alle sammen
meget klogere i løbet af de næste mange måneder!
|
 | Det så nu flot ud med den fine krans, som vajede over taget.
|
 | Da alle spærene var kommet på plads, kunne man også begynde at fornemme, hvordan det
kommer til at se ud med loft til kip i stue, køkkenalrum og gang.
Vi var meget tilfredse med resultatet.
|
 | 12. maj 2020
Så er der ved at komme undertag på og blive isoleret på loftet.
Vi var utroligt heldige med vejret i hele byggefasen. I dag var vist en af de meget få dage, hvor det regnede.
|
 | 15. maj 2020
Inde i huset sker der også ting og sager.
Elektrikerne har arbejdet i flere dage på at fræse ledninger ind i væggene og gøre klar til stikkontakter og eludtag. I dag blev elgruppetavlen installeret.
|
 | 20. maj 2020
Så er taget isoleret, der er lagt undertag og sat lægter op, så det er klar til lægge tagsten.
Tagrenderne er også sat op. Vi har valgt ekstra store arkitekt tagrender i zink, da vi bygger huset uden udhæng. Hele huset bliver bygget med fokus på et minimum af vedligehold, og
vi orker ikke at bruge vores tid på at male udhæng.
|
 | 27. maj 2020
Inde i huset har VVS'erne også haft travlt med at klargøre alle installationer.
Her er der gjort klar til el, vandtilførsel og afløb til opvaskemaskine og vask i køkkenet og rørføring til udendørsvandhane.
|
 | 28. maj 2020, formiddag
Om morgenen kl. 08:00 torsdag den 28. maj startede 2 friske taglæggere fra Jylland med at bære stakke med tagsten op på taget.
Det var såmænd bare 20 tons, som blev båret op med håndkraft!
|
 | 28. maj 2020, eftermiddag
Omkring 10 timer senere var taget færdigt. Så havde de flyttet på de 20 tons 2 gange: Først bære stakkene op på taget, og så tage tagstenene fra stakkene og lægge taget.
2 mand, 40.000 kg, 10 timer! Det er noget af det mest imponerende i forbindelse med byggeriet, som vi har set. Der er vist nogle kontorjobs, som er nemmere end at være taglægger!
Vi synes for øvrigt, at det ser mega godt ud med de sorte teglsten.
|
 | 29. maj 2020
Så er det første lag dampspærre sat op i loftet.
Her et kig fra køkkenalrummet ned gennem gangen til hoveddøren. Nu får man en fin fornemmelse for loftshøjden og virkningen af loft til kip.
|
 | 2. juni 2020
I dag blev der leveret døre og vinduer. Vi har valgt 3-lags lavenergi Rationel AURAPLUS Premium Træ/Alu vinduer. Sort alu udvendig og hvidt træ indvendigt.
Ligesom med tagstene tog det kun én dag, og så var 4 døre og 20 vinduer monteret.
Med tagstene lagt og vinduer og døre monteret, er huset nu helt lukket af, og de kan både komme i gang med at mure ydervæggene og begynde at lave finish invendigt.
|
 | 5. juni 2020
Indvendigt blev de færdige med at sætte gipsplader op i loftet. Vi har valgt akustiklofter i stue og køkkenalrum, hvor der er loft til kip.
Her ses de spændende vinkler i loftet med et kig fra køkkenet ind i alrummet og stuen. Til venstre indgangen til vores soveværelse og badeværelse.
|
 | 18. juni 2020
Efter en uges tid, hvor der ikke rigtig skete det helt store i huset, fik vi leveret alle mursten og mørtelsiloen blev sat op.
Vi har valgt B430 Bison tegl fra Strøjer Tegl. Det er en massiv gennemfarvet sten i lyse og mørke gråbrune farver, som vi synes
giver et rigtig flot spil til huset.
|
 | 24. juni 2020
De første mursten er muret op,og endnu engang sagde vi til hinanden "nu begynder det virkelig at ligne et rigtigt hus"!
Der er afsat omkring 2 uger til at mure huset, det er virkelig et langsomt arbejde, hvor hver enkelt sten jo skal lægges med håndkraft. I forhold til f.eks. lige at rejse alle gasbetonvægge på et par dage,
eller at lægge alle tegl på taget i løbet af én dag, så er det at mure et hus en langsommelig proces.
|
 | 30. juni 2020
På grund af Corona er der normalt kun én type håndværkere i gang i huset ad gangen, men mens murerne arbejder udenfor, er håndværkerne også i gang inde i huset.
Blandt andet skal alle badeværelser vådrumssikres.
|
 | 1. juli 2020
Så er flisemureren gået i gang med at lægge fliser, her i entréen.
For at skabe et roligt udtryk, har vi valgt store 60x60 cm fliser til gulvene og de samme til væggene i brusenicherne på badeværelserne. Farven er "Grey soul dark" og vi har valgt en smal lys grå fuge.
|
 | 2. juli 2020
Murerne er godt i gang udenfor.
Vi har valgt opmurede gavle, dels fordi vi synes, at det giver huset et roligt look, og igen for at minimere vedligeholdelsesarbejdet og ikke skulle male gavle i træ.
|
 | 5. juli 2020
Flisemureren er blevet helt færdig med fliserne indvendigt, og de er også blevet fuget.
I badeværelset skal vi have et fritstående badekar, så her er der sat 2 fliser op i højden bag badekarret. Fliserne er afsluttet med en pæn alu-profil.
|
 | 6. juli 2020
Så er sålbænkene også lavet færdigt. Vi valgte sålbænke som muret rulleskifte, i stedet for sålbænke i skiffer, da vi synes, at de murede sålbænke giver et roligere udtryk.
Der er sat paller med mursten frem på den sidste side af huset, så nu går det stærkt.
|
 | 6. juli 2020
Indenfor er det blevet malerens tur til at overtage huset. På bare 10 arbejdsdage skal én mand fuldspartle hele huset, sætte væv op og male. Samtlige vægge og lofter, 170 kvm., hvoraf halvdelen
er med loft til kip!.
Vi havde aldrig set så meget spartelmasse, væv og maling før i vores liv! Her er det stillet op foran køkkenet, hvor spisebordet til sin tid skal stå.
|
 | 13. juli 2020
Med en enkelt dags forsinkelse på grund af sygdom blev murerne helt færdige med at mure alle yddervægge.
Vi er meget glade for resultatet og de valg, som vi har truffet. Blandt andet er vi specielt tilfredse med de murede søjler ved carporten og den overdækkede terrasse.
Det er godt nok en lidt dyrere løsning end standard stålsøjlerne, men vi synes, at det er så meget pænere, og giver noget tyngde til huset.
|
 | 19. juli 2020
Efter 10 arbejdsdage var maleren færdig med sin del af projektet, og alt står snorlige og klar til inventar, indvendige døre osv.
Der ser meget tomt ud, men mega fedt, og vi kan sagtens forestille os, hvordan den færdige resultat bliver.
|
 | 19. juli 2020
Knap var maleren ude af huset, før HTH leverede alt inventar, bordplader, håndvaske m.m. til køkken, bryggers og badeværelser.
|
 | 21. juli 2020
Køkkenmontørerne har haft travlt, og alle køkkenelementer og bordplader er på plads.
Det er virkelig blevet det store køkken med masser af bordplads og gode arbejdsforhold, som vi havde ønsket os.
Ud mod spisebordet bliver der plads til 2 barstole, hvor familie eller gode venner kan sidde og nyde en Gin & Tonic, mens vi står i køkkenet.
|
 | 22. juli 2020
Så er bryggerset også monteret.
Også her har vi udvidet størrelsen i forhold til mange standardbryggerser, for at få plads til vaskestativ med vådt løbetøj efter vores 3 ugentlige løbeture.
Den store L-formede bordplade giver god plads til at lægge vasketøj sammen på.
|
 | 25. juli 2020
Nu er de fleste låger også monteret i køkken og bryggers. På grund af Coronaen har HTH leveringsproblemer, så vi håber, at de sidse låger kommer, inden vi flytter ind!
Ved spisebordet har vi fået lavet en skænk med de samme låger (når de kommer), greb og bordplade som i resten af køkkenet, så det bliver en flot helhed.
Vi rykkede væggen 40 cm ind mod værelset, så det virker som en indbygget skænk, og vi er ret vilde med resultatet.
|
 |
Gæstebadeværelset er også ved at se færdigt ud med låger på skabene og spejlet monteret. Nu venter det bare på VVS'eren til at montere armaturer og elektrikeren, som skal få lys i spejlet og montere kontakter.
|
 |
I vores badeværelse er alle låger også monteret og spejlet sat op.
|
 |
Samtidig er alle indvendige døre også blevet monteret. Vi har valgt at skifte standarddørene til massive døre. Det kostede kun 575 kr. mere pr. dør, og så har vi virkelig fået nogle lækre døre med gods i.
De er fra Sweedoor og hedder "Swedoor Advanceline Stable, Glat Fiber hvid".
|
 | 27. juli 2020
Igen står håndværkerne næsten i kø efter hinanden. Knapt er køkkenmontøren ude af døren, før gulvmanden er ved at gøre klar til at lægge gulve.
Alle pakkerne med gulve er delt ud i de respektive værelser, hvor de skal ligge i 2 døgn for at akklimatisere sig, så gulvet ikke giver sig på et senere tidspunkt.
Vi er stadig meget imponerede over byggeleder Karsten Nielsen fra HusCompagniet, som styrer slagets gang og får koordineret med alle håndværkerne med sikker hånd.
|
 | 31. juli 2020
Alle gulvene er lagt, fodlister er sømmet på, og der er monteret sokkel i køkkenet. Vi har valgt en sokkel i aluminium, som dels står flot til vores greb og dels er den mere robust, når vores
robotstøvsuger Roberta sendes på arbejde.
Vi har valgt et korkvinyl gulv i farven sand oak, og vi er endnu engang meget tilfredse med vores valg.
|
 | 6. august 2020
Så er der også installeret hårde hvidevarer.
I bryggerset er vaskemaskine og tørretumbler kommet på plads.
|
 | I køkkenet er der installeret
ovn, emhætte og kogeplade.
Opvaskemaskinen er i restordre, så den kommer på et senere tidspunkt.
I loftet er der monteret spot, så nu kommer vores loft til kip virkelig til sin ret.
|
 | 7. august 2020
I badeværelset er vores badekar blevet monteret.
Vi har valgt et fritstående badekar MaXXwell LUCCA fra WellMore.
|
 | I begge badeværelser
har vi opgraderet standardbruseren til en rainshower Crometta S Showerpipe 240 fra Hansgrohe.
|
 | 12. august 2020
Ifølge aftalen med HusCompagniet skulle vi overtage nøglerne til huset torsdag den 10. september, men fordi alting bare havde klappet i hele byggefasen, ringede de og spurgte, om vi gerne ville have det fredag den
28. august i stedet for, næsten 2 uger før tid. Det krævede ikke lang betænkningstid at sige ja tak til det.
Vi aftalte derfor et "forafleveringsmøde" til den 12. august. Her gennemgår man huset for fejl og mangler, som HusCompagniet så har næsten 14 dage til at udbedre, inden den endelige aflevering.
Vi tog ud i huset aftenen før og fandt lidt mærker i malingen, nogle låger i køkkenet, som vi syntes var monteret lidt skævt og andre småting. Vi var lidt nervøse for, om vi skulle skændes om hver eneste fejl, og måske få at vide,
at det altså var under bagatelgrænsen, så det ville de ikke bruge tid eller penge på at udbedre.
|
 | Da vi mødte op dagen efter overraskede byggeleder Karsten Nielsen
positivt endnu engang. Han var lige taget ud i huset en times tid før os, og så havde han ellers sat blå tapestrimler på en mængde små pletter og ujævnheder, som vi overhovedet ikke havde set, og som han mente skulle udbedres.
Alle låger skulle naturligvis bare justeres ind osv. osv.
HTH var stadig i restordre på nogle af lågerne, men de skulle nok nå frem inden den 28. august, lovede Karsten os.
|
 | Selv på badeværelserne havde Karsten fundet små fejl i
malingen, som maleren skulle ud og male om.
På begge badeværelser har vi for øvrigt også opgraderet standard toiletterne til væghængte toiletter med skjult cisterne. Vi synes, at det giver et meget flottere og lettere design til badeværelserne, og så letter det rengøringen
enormt, når toilettet ikke står på gulvet med en masse snørklede skjulte steder bag, som er umulige at komme ind og støvsuge og vaske ordentligt.
|
 | 13. august 2020
Udenfor huset er tømrerne kommet tilbage og har monteret profilbræddelofter i carporten.
Væggen mangler stadig at blive lukket af ind til skuret bag carporten.
|
 | Der er monteret de samme profilbrædder på den overdækkede terrasse.
Vi synes, at det ser enormt godt ud med loft til kip på terrassen og de opmurede vægge og den opmurede gavl.
Elektrikerne har også monteret vores fede up/down udendørs lamper.
|
 | 14. august 2020
Så er der monteret væg ind til skuret. Vi har valgt den lidt dyrere, men næsten vedligeholdelsesfri, løsning med HardiePlank facadebrædder i fibercement - Livet er for kort til at male træværk!
Der er også monteret nedløbsrør, så nu ser huset næsten færdigt ud udefra.
|
 | 18. august 2020
Nu er limtræsbjælkerne ved carport og terrasse malet, så huset er færdigt udefra, og der er ryddet næsten op med byggematerialer og emballage.
Vi skulle også lige prøve, hvordan det var at køre bilen ind i carporten.
|
 | 22. august 2020
Maleren er færdig med slutmalingen, de sidste låger fra HTH er monteret, og opvaskemaskinen og skjuleren til emhætteudsuger er leveret, og venter bare på at blive monteret.
Nu ser køkkenet virkelig færdigt ud, og lige som vi havde drømt om.
|
 | 26. august 2020
2 dage til aflevering af huset, og alt er færdigt og spiller 100%.
Emhætten er færdig og opvaskemaskinen er monteret. Nu skal vi bare sove 2 gange mere, og så er huset vores!
|
Det færdige resultat
 | 28. august 2020
Fredag den 28. august 2020 fik vi nøglerne og kunne overtage huset - næsten 2 uger før tid!
|
 | 28. august 2020
Vi fik en fin velkomstgave af HusCompagniet. På et senere tidspunkt får vi lagt flere billeder ind, både inde fra huset og fra haven, når sommeren 2021 kommer.
|
Lone & Niklas Pandell, Valmuevænget 14, 4200 Slagelse
© COPYRIGHT 2020 ALL RIGHTS RESERVED PANDELL.DK
|